Porzione di trifamiliare in vendita

Roma, Via dei Martiri de la Storta - La Giustiniana
€ 415.000
6 locali 6 locali
184 Mq 184 Mq
3 bagni 3 bagni

Porzione di trifamiliare in vendita

Roma, Via dei Martiri de la Storta - La Giustiniana

Descrizione annuncio

LA GIUSTINIANA – VIA DEI MARTIRI DE LA STORTA.
PORZIONE DI TRIFAMILIARE.

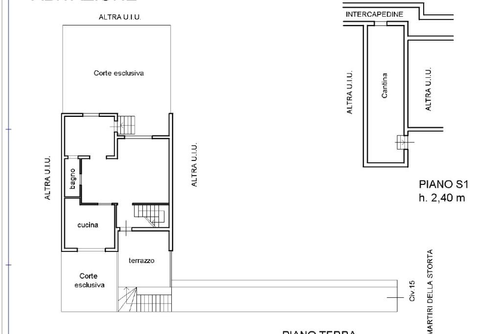
In Via dei Martiri de La Storta, a pochi passi da Via Cappelletta della Giustiniana, proponiamo in vendita una porzione di villa trifamiliare di circa 184 mq, disposta su tre livelli, con giardino privato, posto auto interno e unità abitativa indipendente.

L’ingresso principale si trova al piano terra che, grazie al naturale dislivello del terreno, risulta come un primo piano. Una corte privata, accessibile da cancello, conduce all’abitazione e offre la possibilità di parcheggiare comodamente un’auto all’interno della proprietà.

Entrando in casa troviamo un comodo ingresso che conduce al salone di circa 23 mq, alla cucina abitabile in muratura e a una veranda condonata di 10 mq, dalla quale si accede direttamente al giardino privato di circa 50 mq, ideale per momenti di relax all’aperto. Completa il piano un bagno di servizio con wc e bidet.

Salendo al primo piano si sviluppa la zona notte, composta da un disimpegno, una camera matrimoniale con accesso al balcone privato di 4 mq, una seconda camera doppia, un ampio terrazzo di 17 mq e un bagno finestrato con vasca.

Il secondo piano ospita una camera mansardata con altezza massima di 1,90 m, un bagno con doccia e finestra e un terrazzino di 7 mq.

A completare la proprietà vi è un appartamento di circa 50 mq, dotato di ingresso indipendente (attualmente anche collegato internamente), composto da soggiorno con angolo cottura e camino, camera da letto e bagno con doccia e finestra: soluzione ideale per ospiti, familiari o uso investimento.

Completa la proprietà una cantina di 25 mq.

L’immobile, costruzione anni ’90, si presenta in buone condizioni generali ed è dotato di condizionatori in alcuni ambienti.

La posizione è particolarmente comoda e ben servita: la stazione ferroviaria La Giustiniana dista circa 600 metri, le principali attività commerciali sono facilmente raggiungibili a piedi, la scuola media si trova nelle immediate vicinanze e il Grande Raccordo Anulare è raggiungibile in circa 2 km.

Una soluzione completa e versatile, ideale per famiglie o per chi desidera ampi spazi, indipendenza e comfort.

Per ulteriori informazioni o per fissare una visita, contattaci al +39 3510713036.

Seguici anche su Facebook, visita la nostra pagina Agenzia Tecnocasa La Giustiniana e metti mi piace.

Vai sul nostro canale Youtube 'Agenzia Tecnocasa la Giustiniana' ed iscriviti per restare sempre aggiornato sulle nostre proposte.

Mostra tutto

Nelle vicinanze

Trasporto pubblico Trasporto pubblico
La Giustiniana
La Giustiniana
440 m
Ipogeo degli Ottavi
Ipogeo degli Ottavi
2,2 Km
Cassia/Bassano Romano
Cassia/Bassano Romano
320 m
Cassia/Trionfale
Cassia/Trionfale
400 m
Scuole Scuole
Scuola media La Giustiniana
70 m
Istituto Comprensivo Statale "La Giustiniana"
580 m
St George's British International School
2,5 Km
Scuola Elementare "Giuseppe Tomassetti"
2,7 Km
Scuola Elementare "Parco di Veio"
2,9 Km
Farmacia Farmacia
Farmacia La Giustiniana
380 m
Farmacia
2,6 Km
Farmacia Ianni
2,9 Km
Supermercati Supermercati
TuoDì
400 m
SMA
810 m
Conad
1,7 Km
EuroSpin
1,9 Km
EmmePiù
2,2 Km
Negozi Negozi
Pane e Pizza Forno
190 m
Al 1333 Intimo E Non Solo
350 m
Upim
1,7 Km
DICO
2,5 Km
Sani's
2,5 Km
Ristoranti Ristoranti
La Giustiniana
270 m
Antica Osteria Da Pietro
350 m
Certelli
390 m
Agriturismo La Mucca Ballerina
560 m
Vento Dell'Est
560 m
Mostra tutto

Caratteristiche

Rif.:
61167621
Piano:
Su più livelli di 2
Totale piani:
2
Posti auto:
1
Balconi:
2
Terrazzi:
1
Mostra tutto
Prezzo Prezzo
€ 415.000
Rata mutuo Rata mutuo
€ 1.956 / mese
Spese annue Spese annue
€ 0
Proponi il tuo prezzoProponi il tuo prezzo

Classe Energetica

G
G
G
G
G
G
G
G
G
EP globale non rinnovabile:
69.00 kW h/m² anno
EP globale rinnovabile:
69.00 kW h/m² anno
Anno di costruzione:
1990
Riscaldamento:
Autonomo
Tipo impianto:
A radiatori
Tipo alimentazione:
Metano

Ti interessa visionare l'immobile?

Fissa un appuntamento  Fissa un appuntamento

Richiedi informazioni

Clicca su Leggi per aprire l'informativa
* Questi campi sono obbligatori

Calcola il tuo mutuo

Semplice e senza impegno
Anticipo

( % )
Mutuo

( % )

pochi semplici passi

inserisci i tuoi dati
Questionario completato
Grazie per aver richiesto un appuntamento senza impegno con un nostro Consulente del Credito e Assicurativo.

Hai inserito correttamente tutti i dati necessari e a breve riceverai una e-mail con un link da convalidare per inviare i tuoi dati.
Affiliato
Soluzioni Immobiliari Cassia Srls
Via Cappelletta della Giustiniana, 25/29 00123 Roma (RM)

Il nostro staff


  • Alessandro Proietti
    Affiliato

  • Lorenzo Bucci
    Responsabile

  • Erika Carinci
    Coordinatrice

  • Matteo Spiridigliozzi
    Collaboratore

  • Gabriele Claudio Zurlini
    Collaboratore
Via Cappelletta della Giustiniana, 25/29 00123 Roma (RM)
Zona: Cassia-La Giustiniana
Mostra su mappa
Orari: lunedì-venerdì 9.00/13.00 - 15.00/19.30 sabato 9.00/13.00
Affiliato
Soluzioni Immobiliari Cassia Srls
Via Cappelletta della Giustiniana, 25/29 00123 Roma (RM)

2026 Tecnocasa Franchising S.p.A. - P. IVA 08365160152 - Via Monte Bianco 60/A 20089 Rozzano (MI). Ogni agenzia ha un proprio titolare ed è autonoma. Privacy policy | Policy utilizzo | Cookie policy