Porzione di bifamiliare in vendita

Roma, Vicolo della Giustiniana - Prima Porta
€ 320.000
5 locali 5 locali
174 Mq 174 Mq
2 bagni 2 bagni

Porzione di bifamiliare in vendita

Roma, Vicolo della Giustiniana - Prima Porta

Descrizione annuncio

CASA INDIPENDENTE IN VENDITA – PRIMA PORTA (Vicolo della Giustiniana 11) – CON GIARDINO E AMPI SPAZI ESTERNI

Proponiamo in vendita porzione di villa bifamiliare indipendente, situata in Vicolo della Giustiniana 11, nel quartiere Prima Porta (Roma), in posizione riservata ma ben collegata ai principali servizi e mezzi di trasporto pubblico.
Caratteristiche principali dell’immobile:
- Casa indipendente di costruzione anni ’60, completamente ristrutturata con attenzione ai dettagli.
-Giardino privato di circa 1.000 m², ideale per momenti di relax, attività all’aperto o per realizzare ulteriori spazi esterni.
-Ampia corte esterna pavimentata con possibilità di utilizzare come parcheggio per circa 2–3 autovetture di fronte alla proprietà.
-Presenza di ascensore esterno per collegare i livelli dell’abitazione.

Distribuzione interna:
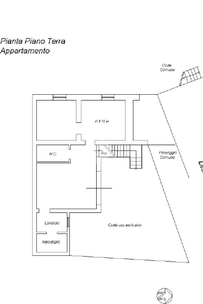
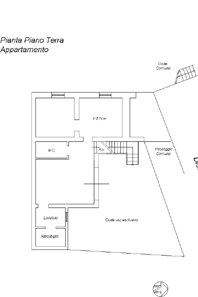
Piano Terra: - Sala hobby con due stanze attualmente destinate a uso residenziale (originariamente cantine)
-Bagno.
-Grande veranda di circa 55 m² con ampie vetrate sul giardino, dotata di cucina attrezzata e camino – perfetta per momenti conviviali o ricevere ospiti.
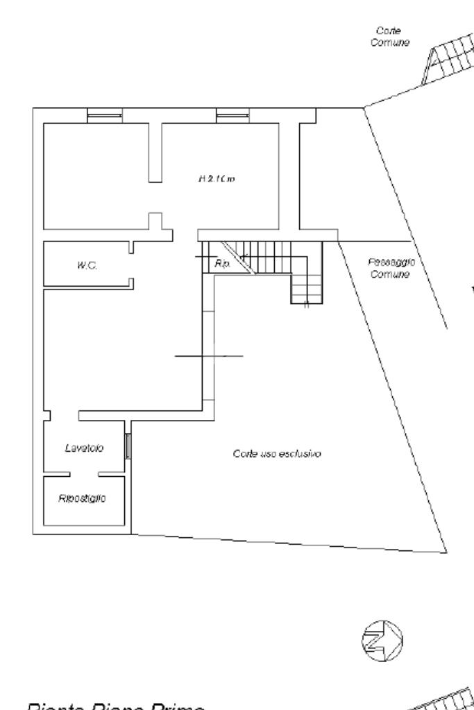
Primo PianoAbitazione principale:
-Ingresso e soggiorno con terrazzo.
-Cucina abitabile di generose dimensioni.
-Camera matrimoniale ampia.
-Seconda stanza con alto terrazzino.
-Bagno.
L’intero piano è stato ristrutturato con materiali moderni.
Punti di forza:
-Soluzione indipendente con giardino privato, rara in zona.
-Ambienti luminosi e ben distribuiti.
-Ideale per chi desidera spazi esterni fruibili, tranquillità e libertà senza rinunciare ai collegamenti urbani.
Collegamenti con mezzi pubblici:
La posizione è servita da diverse linee di autobus e treni urbani, con fermate raggiungibili facilmente a piedi:
Bus ATAC: • Fermata Giustiniana / Prima Porta a pochi passi dall’immobile con le linee: • 200, N200, 303, 033, 035, 037 – collegamenti con varie zone di Roma e con la stazione ferroviaria locale.
Treno urbano: • Stazione La Giustiniana (a richiesta) a circa 5 minuti a piedi, servita dalla linea FC3 della ferrovia Roma–Civita Castellana–Viterbo, con collegamenti rapidi verso il centro città e altre zone periferiche.

Posizione strategica:
-Zona residenziale tranquilla ma ben collegata ai mezzi pubblici.
-Facilità di accesso in auto alle principali arterie stradali.
-Vicinanza ai servizi di quartiere, negozi, scuole e aree verdi.

Per ulteriori informazioni, foto o per fissare una visita, contattaci al +39 3510713036.

Seguici anche su Facebook, visita la nostra pagina Agenzia Tecnocasa La Giustiniana e metti mi piace.

Vai sul nostro canale Youtube 'Agenzia Tecnocasa la Giustiniana' ed iscriviti per restare sempre aggiornato sulle nostre proposte.

Mostra tutto

Nelle vicinanze

Trasporto pubblico Trasporto pubblico
La Giustiniana
La Giustiniana
260 m
Prima Porta
Prima Porta
690 m
Giustiniana/Prima Porta
Giustiniana/Prima Porta
70 m
Giustiniana/Valle Muricana
Giustiniana/Valle Muricana
150 m
Ricariche auto elettriche Ricariche auto elettriche
Eneldrive Saxa Rubra
3,0 Km
Gallo Capitale Pizza E Grill
3,0 Km
Scuole Scuole
Scuole
160 m
Scuola Primaria Via Brembio
650 m
scuola materna comunale " arcobaleno"
660 m
Istituto Comprensivo Via Baccano
730 m
Scuola Montichiari
1,3 Km
Farmacia Farmacia
Farmacia
560 m
Farmacia Valle Muricana
2,5 Km
Farmacia Simeoni
2,9 Km
Ospedali Ospedali
San Raffaele Flaminia - Residenza Sanitaria Assitenziale
1,4 Km
Ospedale Sant'Andrea
2,4 Km
Pronto Soccorso Ospedale "Sant'Andrea"
2,5 Km
Supermercati Supermercati
Todis
430 m
L'antica bottega
550 m
Sigma
770 m
SMA
1,1 Km
Metrò Agricolo
1,7 Km
Negozi Negozi
Abbigliamento Giardino
490 m
Market Romanesc
510 m
Alimentari
510 m
Pane al pane
750 m
Alimentari Forcina
2,7 Km
Bar Bar
Bar
890 m
Meloni
970 m
Snack Bar Montebello
1,1 Km
Ristoranti Ristoranti
Ristoranti
400 m
Le vere grotte
520 m
Osteria del faraone
600 m
Grotte Di Livia
650 m
Garibaldi
1,1 Km
Mostra tutto

Caratteristiche

Rif.:
61160360
Piano:
Su più livelli di 1 con ascensore
Totale piani:
1
Posti auto:
3
Balconi:
2
Camere da letto:
4
Mostra tutto
Prezzo Prezzo
€ 320.000
Rata mutuo Rata mutuo
€ 1.508 / mese
Spese annue Spese annue
€ 0
Proponi il tuo prezzoProponi il tuo prezzo

Classe Energetica

G
G
G
G
G
G
G
G
G
EP globale non rinnovabile:
69.00 kW h/m² anno
EP globale rinnovabile:
69.00 kW h/m² anno
EP invernale del fabbricato:
EP estiva del fabbricato:
Anno di costruzione:
1970
Riscaldamento:
Autonomo
Tipo impianto:
A radiatori
Tipo alimentazione:
Metano

Ti interessa visionare l'immobile?

Fissa un appuntamento  Fissa un appuntamento

Richiedi informazioni

Clicca su Leggi per aprire l'informativa
* Questi campi sono obbligatori

Calcola il tuo mutuo

Semplice e senza impegno
Anticipo

( % )
Mutuo

( % )

pochi semplici passi

inserisci i tuoi dati
Questionario completato
Grazie per aver richiesto un appuntamento senza impegno con un nostro Consulente del Credito e Assicurativo.

Hai inserito correttamente tutti i dati necessari e a breve riceverai una e-mail con un link da convalidare per inviare i tuoi dati.
Affiliato
Soluzioni Immobiliari Cassia Srls
Via Cappelletta della Giustiniana, 25/29 00123 Roma (RM)

Il nostro staff


  • Alessandro Proietti
    Affiliato

  • Lorenzo Bucci
    Responsabile

  • Erika Carinci
    Coordinatrice

  • Matteo Spiridigliozzi
    Collaboratore

  • Gabriele Claudio Zurlini
    Collaboratore
Via Cappelletta della Giustiniana, 25/29 00123 Roma (RM)
Zona: Cassia-La Giustiniana
Mostra su mappa
Orari: lunedì-venerdì 9.00/13.00 - 15.00/19.30 sabato 9.00/13.00
Affiliato
Soluzioni Immobiliari Cassia Srls
Via Cappelletta della Giustiniana, 25/29 00123 Roma (RM)

2026 Tecnocasa Franchising S.p.A. - P. IVA 08365160152 - Via Monte Bianco 60/A 20089 Rozzano (MI). Ogni agenzia ha un proprio titolare ed è autonoma. Privacy policy | Policy utilizzo | Cookie policy