Villa a schiera in vendita

Roma, Via Felice Squitieri - Cesano
€ 250.000
Prezzo aggiornato
6 locali 6 locali
155 Mq 155 Mq

Villa a schiera in vendita

Roma, Via Felice Squitieri - Cesano

Descrizione annuncio

CESANO - VIA FELICE SQUITIERI

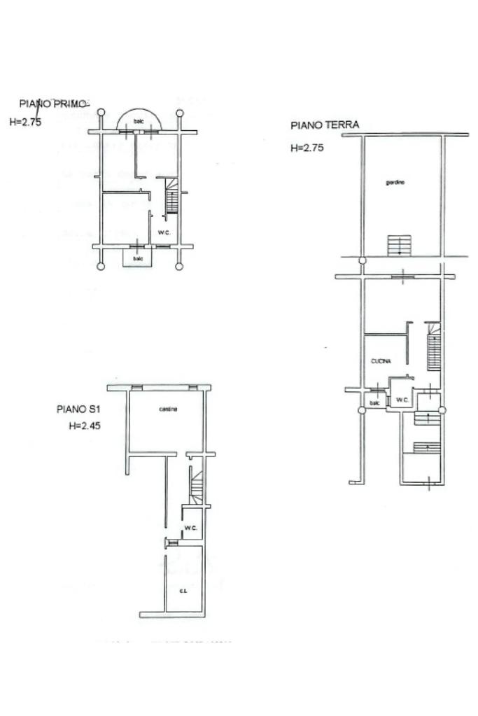
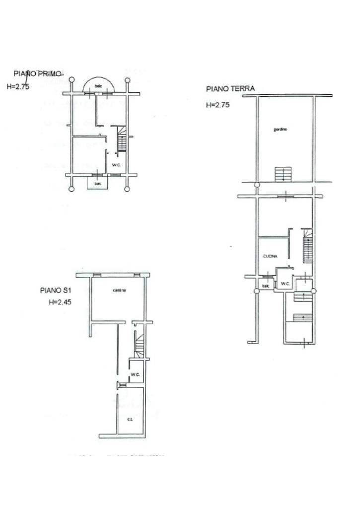
Nel tranquillo contesto residenziale di Via Felice Squitieri, proponiamo in vendita un villino a schiera in cortina di circa 155 mq, disposto su tre livelli e con corte pavimentata d’ingresso e posto auto scoperto ad uso esclusivo.

Al piano terra troviamo il soggiorno, una cucina separata con balcone, bagno finestrato e l’accesso al giardino privato di circa 100 mq, ideale per trascorrere momenti di relax all’aperto.

Il piano superiore, collegato da scala interna, è composto da due camere, una cameretta e bagno; tutte e tre le camere accedono a due balconi.

Il piano seminterrato ospita una zona giorno con angolo cottura, disimpegno, camera matrimoniale e bagno, ideale anche come ambiente indipendente per ospiti o familiari.

L’immobile dispone di infissi in doppio vetro, grate di sicurezza, aria condizionata e riscaldamento autonomo.
Attualmente per l'immobile sono in corso le pratiche di affrancazione per la vendita a libero mercato e di cambio di destinazione d’uso del piano S1 per rendere tutti i livelli residenziali.

La disposizione interna rende la casa una soluzione ideale anche per essere suddivisa in due unità abitative indipendenti, perfetta per chi desidera indipendenza e tranquillità a pochi minuti dai servizi di Cesano.

Per dettagli aggiuntivi, contattaci su WhatsApp al numero 351/0713036.

Seguici su Facebook e Instagram ‘Agenzia Tecnocasa La Giustiniana’ e iscriviti al nostro canale YouTube 'Agenzia Tecnocasa La Giustiniana' per rimanere sempre aggiornato sulle nostre proposte.

Scopri di più visitando la nostra pagina e seguendoci sui social.

Mostra tutto

Nelle vicinanze

Trasporto pubblico Trasporto pubblico
Trasporto pubblico
1,2 Km
Cesano di Roma
Cesano di Roma
1,2 Km
Baccanello/Fosso Arcacci
Baccanello/Fosso Arcacci
280 m
Baccanello/Turinetto
Baccanello/Turinetto
300 m
Scuole Scuole
Scuola "Leonardo Angelini"
760 m
Istituto Comprensivo "Enzo Biagi"
900 m
Scuola "Michele Periello"
2,3 Km
Farmacia Farmacia
Farmacia
810 m
Supermercati Supermercati
Coop
550 m
EuroSpin
570 m
Emmepiú
590 m
Supermercati
2,7 Km
Negozi Negozi
Negozi
2,7 Km
Ristoranti Ristoranti
Osteria del Borgo
2,2 Km
Ape Regina
2,5 Km
Le due Lune
2,7 Km
Mostra tutto

Caratteristiche

Rif.:
61129149
Piano:
3 di 3 (Piano su più livelli)
Balconi:
3
Camere da letto:
4
Arredamento:
Assente
Condizionamento:
Autonomo
Mostra tutto
Prezzo Prezzo
€ 250.000
Rata mutuo Rata mutuo
€ 1.180 / mese
Proponi il tuo prezzoProponi il tuo prezzo

Classe Energetica

G
G
G
G
G
G
G
G
G
EP invernale del fabbricato:
EP estiva del fabbricato:
Anno di costruzione:
1997
Riscaldamento:
Autonomo
Tipo impianto:
A radiatori
Tipo alimentazione:
Metano

Prezzo ridotto di €1 (4%%)

Ti interessa visionare l'immobile?

Fissa un appuntamento  Fissa un appuntamento

Richiedi informazioni

Clicca su Leggi per aprire l'informativa
* Questi campi sono obbligatori

Calcola il tuo mutuo

Semplice e senza impegno
Anticipo

( % )
Mutuo

( % )

pochi semplici passi

inserisci i tuoi dati
Questionario completato
Grazie per aver richiesto un appuntamento senza impegno con un nostro Consulente del Credito e Assicurativo.

Hai inserito correttamente tutti i dati necessari e a breve riceverai una e-mail con un link da convalidare per inviare i tuoi dati.
Affiliato
Soluzioni Immobiliari Cassia Srls
Via Cappelletta della Giustiniana, 25/29 00123 Roma (RM)

Il nostro staff


  • Alessandro Proietti
    Affiliato

  • Lorenzo Bucci
    Responsabile

  • Erika Carinci
    Coordinatrice

  • Matteo Spiridigliozzi
    Collaboratore

  • Gabriele Zurlini
    Collaboratore
Via Cappelletta della Giustiniana, 25/29 00123 Roma (RM)
Zona: Cassia-La Giustiniana
Mostra su mappa
Orari: lunedì-venerdì 9.00/13.00 - 15.00/19.30 sabato 9.00/13.00
Affiliato
Soluzioni Immobiliari Cassia Srls
Via Cappelletta della Giustiniana, 25/29 00123 Roma (RM)

2025 Tecnocasa Franchising S.p.A. - P. IVA 08365160152 - Via Monte Bianco 60/A 20089 Rozzano (MI). Ogni agenzia ha un proprio titolare ed è autonoma. Privacy policy | Policy utilizzo | Cookie policy