Bilocale in vendita

Roma, Via Trionfale - La Giustiniana
€ 170.000
Prezzo aggiornato
2 locali 2 locali
45 Mq 45 Mq
1 bagno 1 bagno

Bilocale in vendita

Roma, Via Trionfale - La Giustiniana

Descrizione annuncio

LA GIUSTINIANA – VIA TRIONFALE

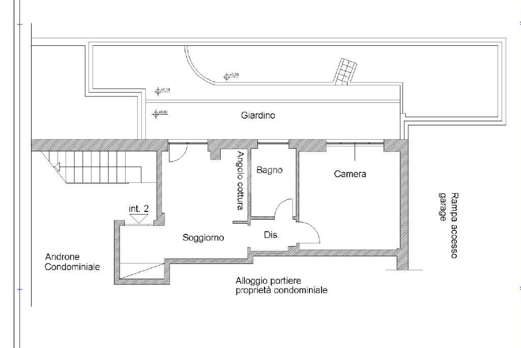
In Via Trionfale, a soli 100 metri dalle principali attività commerciali e a circa 800 metri dalla stazione FM3 La Giustiniana, proponiamo in vendita un appartamento con giardino privato, ideale per chi desidera vivere in una zona ben servita senza rinunciare a uno spazio esterno.

L'immobile, situato al piano terra, ha una superficie di circa 45 mq. L'ingresso si apre su un piccolo disimpegno dotato di ampio armadio a muro. Proseguendo sulla sinistra si sviluppa la zona giorno, composta da un soggiorno con angolo cottura e accesso diretto al giardino privato di circa 45 mq, in parte mattonato, perfetto per momenti di relax all'aperto.

Un comodo disimpegno conduce alla zona notte, dove troviamo una camera da letto matrimoniale e un bagno con doccia e finestra.

Nel corso degli anni l'immobile è stato oggetto di interventi di manutenzione e miglioramento. Gli infissi, sostituiti circa due anni fa, sono in PVC con doppio vetro, e tutti gli ambienti sono dotati di inferriate. Il riscaldamento è autonomo e nella camera da letto è presente un condizionatore.

Completa la proprietà una cantina di circa 5 mq.

La soluzione si presta perfettamente sia come abitazione per una coppia sia come investimento, con una rendita annua stimata di circa €8.400.

L’IMMOBILE E’ ATTUALMENTE LOCATO CON REGOLARE CONTRATTO DI LOCAZIONE FINO AL 9 NOVEMBRE 2026.

Per ulteriori info puoi scriverci su WhatsApp al n. 351/0713036

Seguici su Facebook: Agenzia Tecnocasa La Giustiniana
Iscriviti al nostro canale YouTube: “Agenzia Tecnocasa La Giustiniana”

Mostra tutto

Nelle vicinanze

Trasporto pubblico Trasporto pubblico
La Giustiniana
La Giustiniana
630 m
Ipogeo degli Ottavi
Ipogeo degli Ottavi
1,4 Km
Trionfale/Spaccamela
Trionfale/Spaccamela
60 m
Trionfale/Piccinini
Trionfale/Piccinini
210 m
Scuole Scuole
Istituto Comprensivo Statale "La Giustiniana"
370 m
Scuola media La Giustiniana
700 m
Scuola Elementare "Parco di Veio"
2,4 Km
Scuole
2,9 Km
Farmacia Farmacia
Farmacia La Giustiniana
830 m
Farmacia Ianni
2,4 Km
Farmacia
2,7 Km
Supermercati Supermercati
TuoDì
400 m
SMA
400 m
EmmePiù
1,6 Km
Conad
2,2 Km
EuroSpin
2,5 Km
Negozi Negozi
Pane e Pizza Forno
610 m
Al 1333 Intimo E Non Solo
660 m
DICO
1,9 Km
Upim
2,4 Km
Bar Bar
Studio7 Roma
2,9 Km
Magic Fly
2,9 Km
Ristoranti Ristoranti
Cambio Rotta
200 m
Vento Dell'Est
210 m
La Giustiniana
520 m
Antica Osteria Da Pietro
690 m
L'Oasi nel Parco
710 m
Mostra tutto

Caratteristiche

Rif.:
61190094
Piano:
Terra di 4 con ascensore
Totale piani:
4
Camere da letto:
1
Arredamento:
Assente
Condizionamento:
Autonomo
Mostra tutto
Prezzo Prezzo
€ 170.000
Rata mutuo Rata mutuo
€ 808 / mese
Spese annue Spese annue
€ 345
Proponi il tuo prezzoProponi il tuo prezzo

Classe Energetica

G
G
G
G
G
G
G
G
G
EP globale non rinnovabile:
79.00 kW h/m² anno
EP globale rinnovabile:
79.00 kW h/m² anno
EP invernale del fabbricato:
EP estiva del fabbricato:
Anno di costruzione:
1960
Riscaldamento:
Autonomo
Tipo impianto:
A radiatori
Tipo alimentazione:
Metano

Prezzo ridotto di €1 (6%%)

Ti interessa visionare l'immobile?

Fissa un appuntamento  Fissa un appuntamento

Richiedi informazioni

Clicca su Leggi per aprire l'informativa
* Questi campi sono obbligatori

Calcola il tuo mutuo

Semplice e senza impegno
Anticipo

( % )
Mutuo

( % )

pochi semplici passi

inserisci i tuoi dati
Questionario completato
Grazie per aver richiesto un appuntamento senza impegno con un nostro Consulente del Credito e Assicurativo.

Hai inserito correttamente tutti i dati necessari e a breve riceverai una e-mail con un link da convalidare per inviare i tuoi dati.
Affiliato
Soluzioni Immobiliari Cassia Srls
Via Cappelletta della Giustiniana, 25/29 00123 Roma (RM)

Il nostro staff


  • Alessandro Proietti
    Affiliato

  • Lorenzo Bucci
    Responsabile

  • Erika Carinci
    Coordinatrice

  • Matteo Spiridigliozzi
    Collaboratore
Via Cappelletta della Giustiniana, 25/29 00123 Roma (RM)
Zona: Cassia-La Giustiniana
Mostra su mappa
Orari: lunedì-venerdì 9.00/13.00 - 15.00/19.30 sabato 9.00/13.00
Affiliato
Soluzioni Immobiliari Cassia Srls
Via Cappelletta della Giustiniana, 25/29 00123 Roma (RM)

2026 Tecnocasa Franchising S.p.A. - P. IVA 08365160152 - Via Monte Bianco 60/A 20089 Rozzano (MI). Ogni agenzia ha un proprio titolare ed è autonoma. Privacy policy | Policy utilizzo | Cookie policy