Trilocale in vendita

Roma, Via enrico mancini - La Giustiniana
€ 340.000
Prezzo aggiornato
3 locali 3 locali
100 Mq 100 Mq
2 bagni 2 bagni

Trilocale in vendita

Roma, Via enrico mancini - La Giustiniana

Descrizione annuncio

CONSORZIO CASE E CAMPI - Via Enrico Mancini.

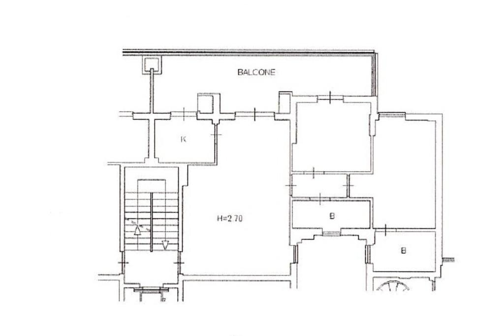
Nella parte più alta e panoramica di Via Enrico Mancini, all’interno dell’esclusivo consorzio “Case e Campi”, proponiamo in vendita un appartamento situato in via privata con accesso da cancello, in un contesto residenziale tranquillo, riservato e immerso nel verde.

L’immobile si trova al primo piano, ma grazie all’affaccio alto gode di luminosità e di una vista da terzo piano. L’ingresso si apre su un accogliente soggiorno con accesso diretto al terrazzo di circa 20 mq, uno spazio ideale per pranzi all’aperto e momenti di relax. In un angolo del soggiorno troviamo il cucinotto, anch’esso con uscita sullo stesso terrazzo.

Un comodo disimpegno conduce alla zona notte, composta da camera matrimoniale con bagno en suite finestrato con vasca, seconda camera singola e secondo bagno finestrato con doccia.

Completa la proprietà un box auto di circa 22 mq, venduto separatamente al prezzo di €29.000.

La costruzione risale al 2006 e l’appartamento si presenta in buono stato manutentivo.

Accessori e rifiniture:

. parquet in tutti gli ambienti

. climatizzatori in ogni stanza

. impianto di aspirapolvere centralizzato

. persiane blindate

Il condominio è inoltre dotato di ampia area parcheggio e di un curato parco condominiale alberato con area giochi per bambini, che rende l’ambiente particolarmente piacevole e adatto alla vita familiare.

Una soluzione ideale per chi cerca tranquillità, verde e comfort, a pochi minuti dai principali servizi.

Lo stabile si trova a circa 1 km. dalla stazione FM3 La Giustiniana e a circa 1,5 km dal GRA (uscita Cassia o trionfale). Il complesso condominiale dista circa 700 mt. dalla Cassia.

IL CONSORZIO CASE E CAMPI

Il Consorzio Case e Campi è, sulla Cassia, una delle pochissime isole felici.

La cura del verde, circa quindici ettari con tre parchi aperti al pubblico, la pulizia delle strade interne e la sicurezza con personale proprio e con l’ausilio di un sistema di videosorveglianza capillare, nonché la piccola manutenzione di opere e servizi comuni sono assicurate dal Consorzio.

Nella galleria fotografica pubblicata sul sito del consorzio di Case e Campi, si può osservare come sia possibile con professionalità, diligenza, e molta buona volontà da parte di tutti gli addetti ai lavori mantenere i luoghi dove abitano i nostri figli assicurando una qualità di vita più che dignitosa e con un costo mensile più che accettabile e che varia, attualmente, a seconda delle dimensione dell’immobile, dai venti ai trenta euro mensili.

Per ulteriori info puoi scriverci su WhatsApp al n. 351/0713036

Seguici su Facebook: Agenzia Tecnocasa La Giustiniana
Iscriviti al nostro canale YouTube: “Agenzia Tecnocasa La Giustiniana”

Mostra tutto

Nelle vicinanze

Trasporto pubblico Trasporto pubblico
Ipogeo degli Ottavi
Ipogeo degli Ottavi
1,1 Km
La Giustiniana
La Giustiniana
1,2 Km
Cassia/Lega
Cassia/Lega
410 m
Trionfale/Iannicelli
Trionfale/Iannicelli
460 m
Scuole Scuole
Istituto Comprensivo Statale "La Giustiniana"
710 m
Scuola media La Giustiniana
1,2 Km
Scuola Elementare "Parco di Veio"
2,0 Km
Scuole
2,4 Km
American Overseas School of Rome
2,5 Km
Farmacia Farmacia
Farmacia La Giustiniana
1,4 Km
Farmacia Ianni
1,9 Km
Farmacia
2,3 Km
Supermercati Supermercati
SMA
520 m
TuoDì
930 m
EmmePiù
1,1 Km
Conad
1,8 Km
Punto SMA
2,2 Km
Negozi Negozi
Pane e Pizza Forno
1,1 Km
Al 1333 Intimo E Non Solo
1,2 Km
DICO
1,4 Km
L'Isola Celiaca Roma Cassia
2,6 Km
Upim
2,9 Km
Bar Bar
Studio7 Roma
2,4 Km
Magic Fly
2,5 Km
Ristoranti Ristoranti
L'Oasi nel Parco
370 m
Pony Pizza
570 m
Vento Dell'Est
730 m
Cambio Rotta
740 m
La Giustiniana
1,0 Km
Mostra tutto

Caratteristiche

Rif.:
61187849
Piano:
1 di 3 con ascensore (Piano medio)
Box:
1
Terrazzi:
1
Camere da letto:
2
Arredamento:
Assente
Mostra tutto
Prezzo Prezzo
€ 340.000
Prezzo box Prezzo box
€ 29.000
Rata mutuo Rata mutuo
€ 1.615 / mese
Spese annue Spese annue
€ 1.673
Proponi il tuo prezzoProponi il tuo prezzo

Classe Energetica

C
C
C
C
C
C
C
C
C
EP globale non rinnovabile:
74.82 kW h/m² anno
EP invernale del fabbricato:
EP estiva del fabbricato:
Anno di costruzione:
2006
Riscaldamento:
Autonomo
Tipo impianto:
A radiatori
Tipo alimentazione:
Metano

Prezzo ridotto di €1 (12%%)

Ti interessa visionare l'immobile?

Fissa un appuntamento  Fissa un appuntamento

Richiedi informazioni

Clicca su Leggi per aprire l'informativa
* Questi campi sono obbligatori

Calcola il tuo mutuo

Semplice e senza impegno
Anticipo

( % )
Mutuo

( % )

pochi semplici passi

inserisci i tuoi dati
Questionario completato
Grazie per aver richiesto un appuntamento senza impegno con un nostro Consulente del Credito e Assicurativo.

Hai inserito correttamente tutti i dati necessari e a breve riceverai una e-mail con un link da convalidare per inviare i tuoi dati.
Affiliato
Soluzioni Immobiliari Cassia Srls
Via Cappelletta della Giustiniana, 25/29 00123 Roma (RM)

Il nostro staff


  • Alessandro Proietti
    Affiliato

  • Lorenzo Bucci
    Responsabile

  • Erika Carinci
    Coordinatrice

  • Matteo Spiridigliozzi
    Collaboratore
Via Cappelletta della Giustiniana, 25/29 00123 Roma (RM)
Zona: Cassia-La Giustiniana
Mostra su mappa
Orari: lunedì-venerdì 9.00/13.00 - 15.00/19.30 sabato 9.00/13.00
Affiliato
Soluzioni Immobiliari Cassia Srls
Via Cappelletta della Giustiniana, 25/29 00123 Roma (RM)

2026 Tecnocasa Franchising S.p.A. - P. IVA 08365160152 - Via Monte Bianco 60/A 20089 Rozzano (MI). Ogni agenzia ha un proprio titolare ed è autonoma. Privacy policy | Policy utilizzo | Cookie policy