Bifamiliare in vendita

Riano, Via Tiberina
€ 529.000
6 locali 6 locali
308 Mq 308 Mq
4 bagni 4 bagni

Bifamiliare in vendita

Riano, Via Tiberina

Descrizione annuncio

CONSORZIO COLLE ROMANO - VIA TIBERINA

Nel prestigioso comprensorio di Colle Romano, proponiamo in vendita una porzione di villa bifamiliare di 308 mq, sviluppata su tre livelli più mansarda, immersa in un contesto verde e riservato, con giardino privato di 1.200 mq e un bosco di querce, lecci e siepi di pungitopo di circa 1 ettaro.
La villa si presenta in ottimo stato, con finiture di pregio e spazi luminosi e ben distribuiti.
Tutti gli ambienti sono caratterizzati da ampie vetrate, di cui molte a tutta parete e diverse finestre utili per garantire un costante ricircolo d’aria.

Descrizione Interna
Al piano d’ingresso si viene accolti da un’ampia zona living composta da un salone di 35 mq che affaccia su ampia balconata rivestita in pietra rosa di Verona, e da una cucina abitabile di 30 mq con camino, oltre a un pratico ripostiglio di 5 mq.
Entrambi gli ambienti affacciano su patii esterni caratterizzati da pavimentazione in peperino tagliato a listelli e alla zona barbecue. Salendo mezzo piano si accede alla zona notte, composta da due camere matrimoniali e due bagni finestrati, uno con doccia e uno con vasca. Entrambe le camere godono di ampio terrazzo privato, ideale per momenti di relax.


Il livello superiore ospita un luminoso piano composto da un grande studio, una cameretta e un bagno finestrato. Tutti gli ambienti hanno accesso a un suggestivo terrazzo di 35 mq con vista aperta sul verde. Non si tratta di una mansarda, bensì del primo e ultimo piano dell’abitazione.

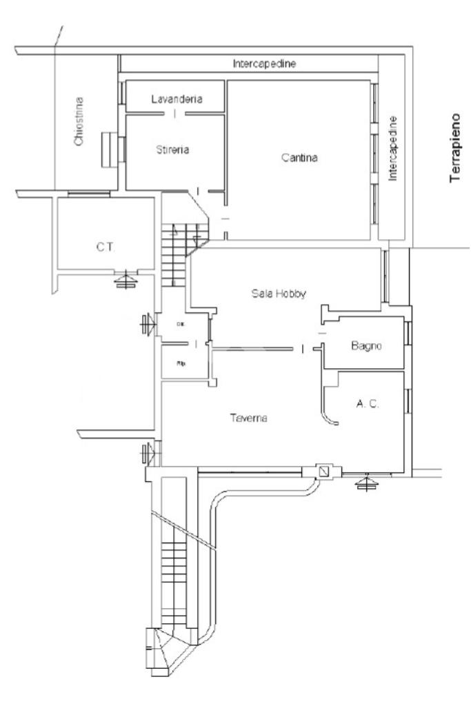
Il piano seminterrato, parzialmente fuori terra caratterizzato da un’ampia sala hobby, un locale stireria e una lavanderia, entrambe con accesso diretto alla zona stenditoio e al giardino.

Spazi Esterni, Pertinenze e Trilocale
La proprietà è completata da un box auto di 22 mq con annesso locale di servizio di 10 mq.
Nel piano sottostante è inoltre presente un piccolo trilocale di circa 50 mq, indipendente e con accesso diretto al giardino: una soluzione ideale per ospiti, personale di servizio o per realizzare uno spazio autonomo.
All’esterno, l’ampio giardino di 1.200 mq si estende verso il suggestivo bosco privato di querce secolari, lecci e siepi, che garantisce privacy e un’atmosfera naturale impagabile.

ACCESSORI E RIFINITURE
cappotto termico
caldaia a condensazione
pavimento in legno teak del Siam
infissi doppio vetro con camera termica in alluminio
Nei bagni maioliche in ceramica di Vietri

IL COMPRENSORIO
Il Consorzio Colle Romano offre portineria, vigilanza privata h 24, ampia pineta e impianti sportivi con campi da gioco, da tennis e piscina.
Situato sulla Via Tiberina, a circa 3 km dallo svincolo autostradale della A1, garantisce ottimi collegamenti e servizi.

Per dettagli aggiuntivi, contattaci su WhatsApp al numero 351/0713036.

Seguici su Facebook: Agenzia Tecnocasa La Giustiniana e iscriviti al nostro canale YouTube 'Agenzia Tecnocasa La Giustiniana' per rimanere sempre aggiornato sulle nostre proposte.

Vai sul nostro canale Youtube 'Agenzia Tecnocasa la Giustiniana' ed iscriviti per restare sempre aggiornato sulle nostre proposte.

Mostra tutto

Nelle vicinanze

Farmacia Farmacia
Farmacia
2,5 Km
Supermercati Supermercati
Supermercati
2,6 Km
Negozi Negozi
Negozi
2,5 Km
Ristoranti Ristoranti
Dai Nobili
2,7 Km
Mostra tutto

Caratteristiche

Rif.:
61152333
Piano:
Su più livelli di 2
Totale piani:
2
Box:
1
Balconi:
1
Terrazzi:
2
Mostra tutto
Prezzo Prezzo
€ 529.000
Rata mutuo Rata mutuo
€ 2.494 / mese
Spese annue Spese annue
€ 3.000
Proponi il tuo prezzoProponi il tuo prezzo

Classe Energetica

G
G
G
G
G
G
G
G
G
EP globale non rinnovabile:
70.00 kW h/m² anno
EP globale rinnovabile:
70.00 kW h/m² anno
EP invernale del fabbricato:
EP estiva del fabbricato:
Anno di costruzione:
1980
Riscaldamento:
Autonomo
Tipo impianto:
A radiatori
Tipo alimentazione:
Metano

Ti interessa visionare l'immobile?

Fissa un appuntamento  Fissa un appuntamento

Richiedi informazioni

Clicca su Leggi per aprire l'informativa
* Questi campi sono obbligatori

Calcola il tuo mutuo

Semplice e senza impegno
Anticipo

( % )
Mutuo

( % )

pochi semplici passi

inserisci i tuoi dati
Questionario completato
Grazie per aver richiesto un appuntamento senza impegno con un nostro Consulente del Credito e Assicurativo.

Hai inserito correttamente tutti i dati necessari e a breve riceverai una e-mail con un link da convalidare per inviare i tuoi dati.
Affiliato
Soluzioni Immobiliari Cassia Srls
Via Cappelletta della Giustiniana, 25/29 00123 Roma (RM)

Il nostro staff


  • Alessandro Proietti
    Affiliato

  • Lorenzo Bucci
    Responsabile

  • Erika Carinci
    Coordinatrice

  • Matteo Spiridigliozzi
    Collaboratore

  • Gabriele Claudio Zurlini
    Collaboratore
Via Cappelletta della Giustiniana, 25/29 00123 Roma (RM)
Zona: Cassia-La Giustiniana
Mostra su mappa
Orari: lunedì-venerdì 9.00/13.00 - 15.00/19.30 sabato 9.00/13.00
Affiliato
Soluzioni Immobiliari Cassia Srls
Via Cappelletta della Giustiniana, 25/29 00123 Roma (RM)

2026 Tecnocasa Franchising S.p.A. - P. IVA 08365160152 - Via Monte Bianco 60/A 20089 Rozzano (MI). Ogni agenzia ha un proprio titolare ed è autonoma. Privacy policy | Policy utilizzo | Cookie policy